Jernbanegade 26

6000 Kolding


Midt i Kolding centrum, på en af byens mest centrale og kendte adresser, udbydes dette markante erhvervslejemål i Jernbanegade 26 – tidligere hjemsted for Løve Apotek. Beliggenheden er kendetegnet ved høj synlighed, et konstant byliv og en naturlig strøm af mennesker, hvilket skaber ideelle rammer for publikumsorienterede erhverv.

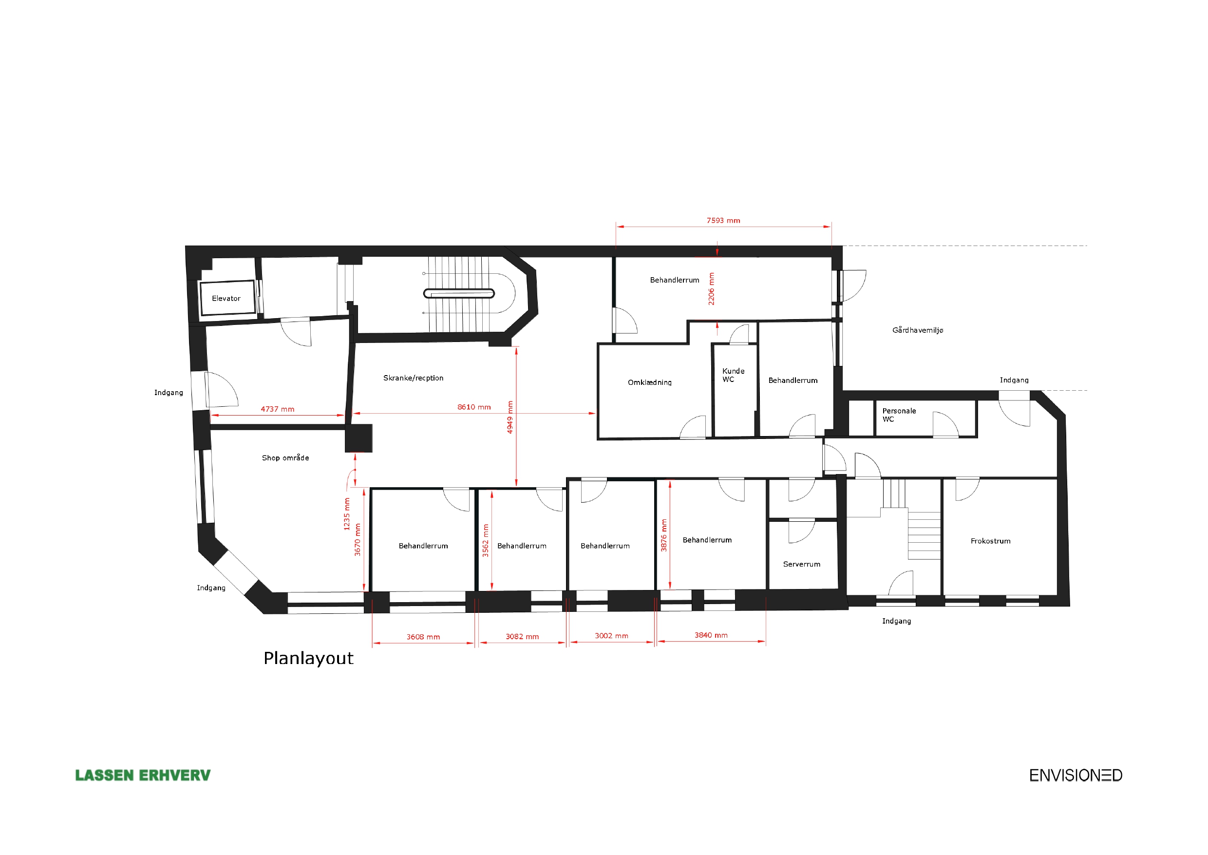
Lejemålet rummer et samlet salgs- og brugsareal på 386 m², suppleret af en kælder på ca. 60 m², der med fordel kan anvendes til lager eller arkiv. De store, sammenhængende arealer giver stor fleksibilitet i indretningen og mulighed for at tilpasse lokalerne til netop lejers behov.

Med sin centrale placering og rummelige planløsning egner lejemålet sig særdeles godt til sundhedsrelaterede formål. Lokalerne kan med fordel opdeles i mindre behandlerrum, konsultationsrum eller klinikfaciliteter, hvilket gør lejemålet oplagt som en del af – eller et supplement til – det etablerede sundhedsmiljø i Kolding centrum og det nærliggende Sundhedshus.

Jernbanegade forbinder byens handelsliv med kollektiv trafik, og lejemålet er beliggende i umiddelbar nærhed af banegården, gågader, caféer, detailhandel og offentlige parkeringsfaciliteter. Den lette tilgængelighed er en klar fordel for både patienter, kunder og medarbejdere, uanset om de ankommer til fods, på cykel, med bil eller offentlig transport.

Anvendelsesmuligheder:
• Klinikker og behandlere
• Sundheds- og terapihus
• Læge-, tandlæge- eller speciallægepraksis
• Konsulent- og praksisfællesskaber
• Alternativt liberalt erhverv eller detail (afhængig af indretning)
• Overtagelse kan ske efter nærmere aftale.

Ejendommen fremstår særdeles præsentabel, med store vinduespartier og glasindgange, særligt mod Jernbanegade. Det giver en moderne facade og en oplagt eksponeringsflade for butikslejemålene i stueplan.


Åben i Google Maps

Nøgletal

  • Lokaletype detail & butik
  • Centralt erhvervslejemål i hjertet af Kolding - mulighed for opdeling
  • Etageareal 386 m2
  • Årlig leje kr. 308.800
  • Energiklassifikation C

Kontakt mægler

Ronni Bagge

Indehaver & Erhvervsmægler, MDE


20 57 53 70
ronni@lassenerhverv.dk