Limfjordsvej 7

6715 Esbjerg N


Lassen Erhverv har fornøjelsen af at udbyde denne velindrettede lager- og værkstedsejendom med tilhørende kontorafsnit til udlejning.

Ejendommen er beliggende i Esbjergs nordlige industrikvarter, Kjersing, et af byens mest attraktive erhvervsområder sammen med Esbjerg Havn. Området er præget af et stærkt og varieret erhvervsliv med virksomheder som NemByg A/S, Elgiganten, M.I. Montage A/S, Cocio Chokolademælk A/S og Store Verden Safari A/S som naboer.

Beliggenheden giver særdeles gode adgangsforhold for tung trafik, med kort afstand til motorvejen og optimal forbindelse til Esbjergs overordnede infrastruktur. Derudover er der nem adgang til det øvrige vejnet og de nærliggende industriområder.

Grunden udgør 5.450 m² og er regulær og indhegnet. Der er kørefast belægning både foran og bag bygningen, hvor der findes gode parkeringsmuligheder, rigelig manøvreplads samt plads til opmagasinering.

Hovedejendommen er ifølge BBR opført i 1988 med til-/ombygning i 1994. Bygningen er opført med stålspærskonstruktion, facade i mursten og stålplader samt eternittag, som blev udskiftet i efteråret 2021. Samme år blev vinduespartierne mod parkeringsarealet og et vindue i gavlen ligeledes udskiftet.
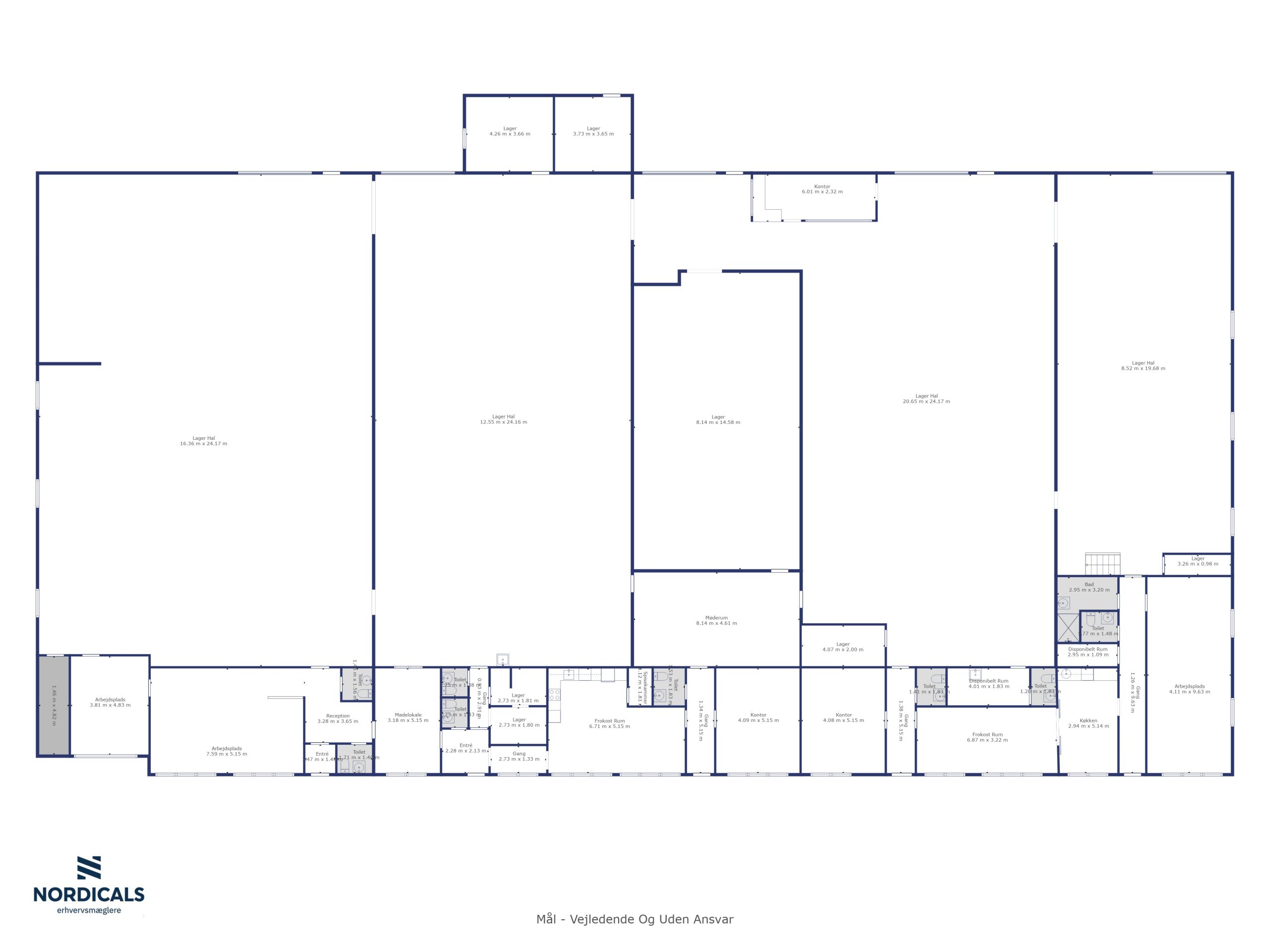
Det samlede areal udgør 1.780 m², og bygningen er forsynet med trykluftinstallation.

Kontor- og administrationsafsnittet byder på lyse og indbydende lokaler med både åbne kontormiljøer og mindre cellekontorer. Der er desuden flere møde- og konferencelokaler, et stort frokostrum samt gode toiletfaciliteter.

Produktionshallen er højloftet, opvarmet og har et godt naturligt lysindfald fra store ovenlysvinduer. Hallen er opdelt i fem sektioner og har fem alu-hejseporte med adgang til arealet bag bygningen.

Herudover findes et uopvarmet lager på 268 m² fra 1994 (til-/ombygget i 2014) samt et yderligere uopvarmet lager på 79 m² fra 2012.

En rigtig god mulighed for at erhverve en velholdt og fleksibel ejendom, der egner sig til mange formål – herunder handelsvirksomhed, distribution, lettere produktion, webshop eller lignende.

Ejendommen kan ligeledes købes for kontant kr. 8.995.000.


Åben i Google Maps

Nøgletal

  • Lokaletype lager & produktion
  • Lager / logistik ejendom i Kjersing
  • Etageareal 2.127 m2
  • Grundareal 5.450 m2
  • Årlig leje kr. 800.000

Kontakt mægler

Ronni Bagge

Indehaver & Erhvervsmægler, MDE


20 57 53 70
ronni@lassenerhverv.dk