Sjællandsgade 39

6700 Esbjerg


Attraktivt beliggende projektgrund i Esbjerg udbydes nu med eksisterende bygninger til nedrivning og mulighed for opførelse af moderne etagebyggeri.

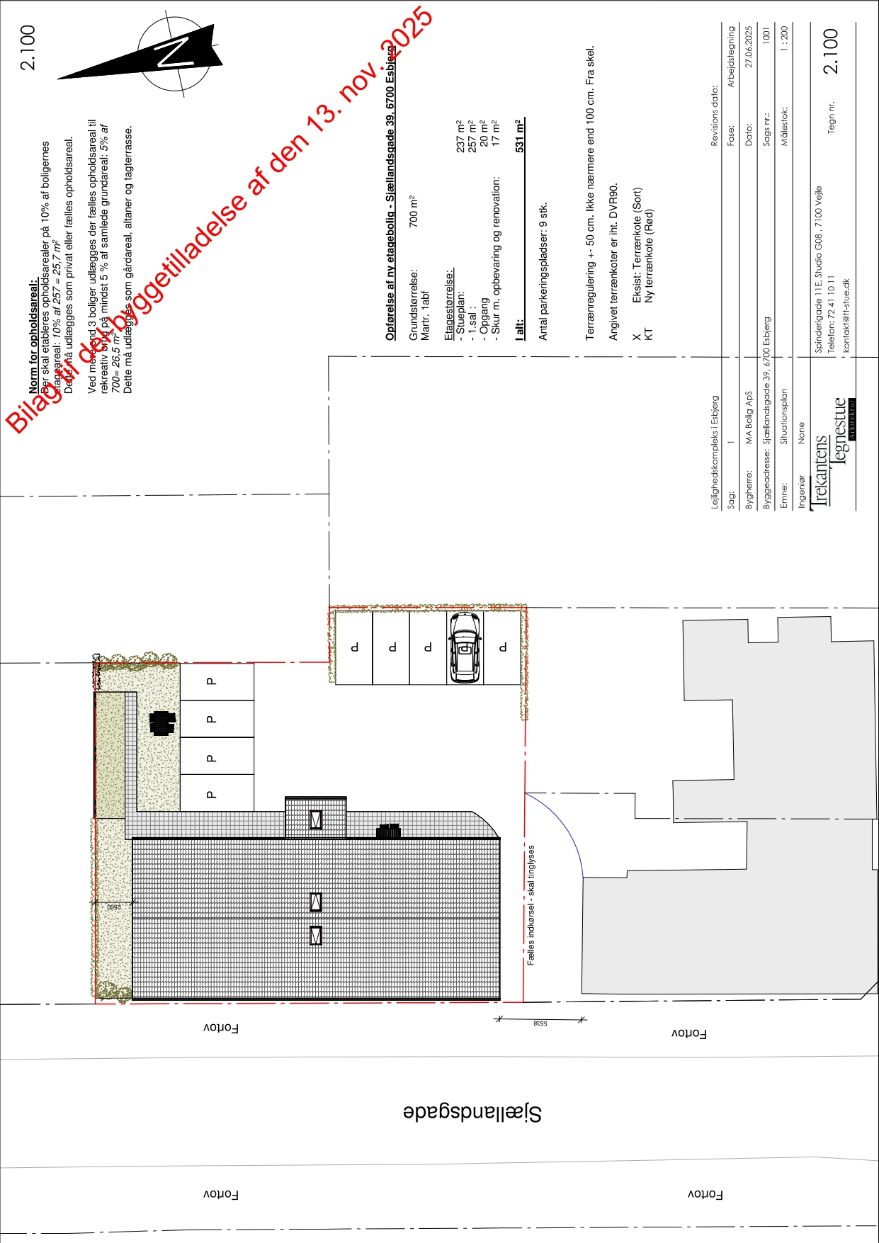
Grunden udgør ca. 700 m² og er ideel til udvikling af et mindre boligprojekt i et område med god efterspørgsel på både lejeboliger og ejerboliger.

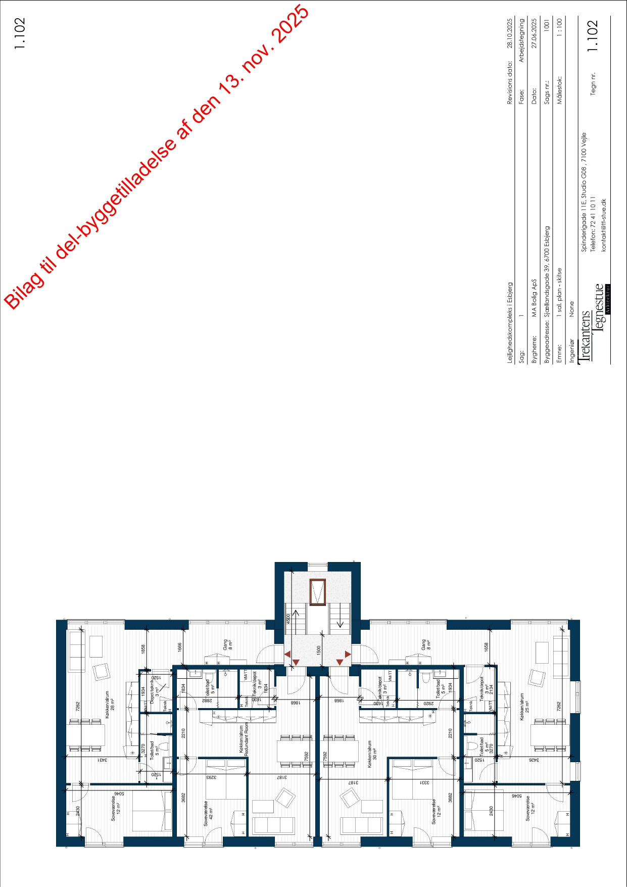
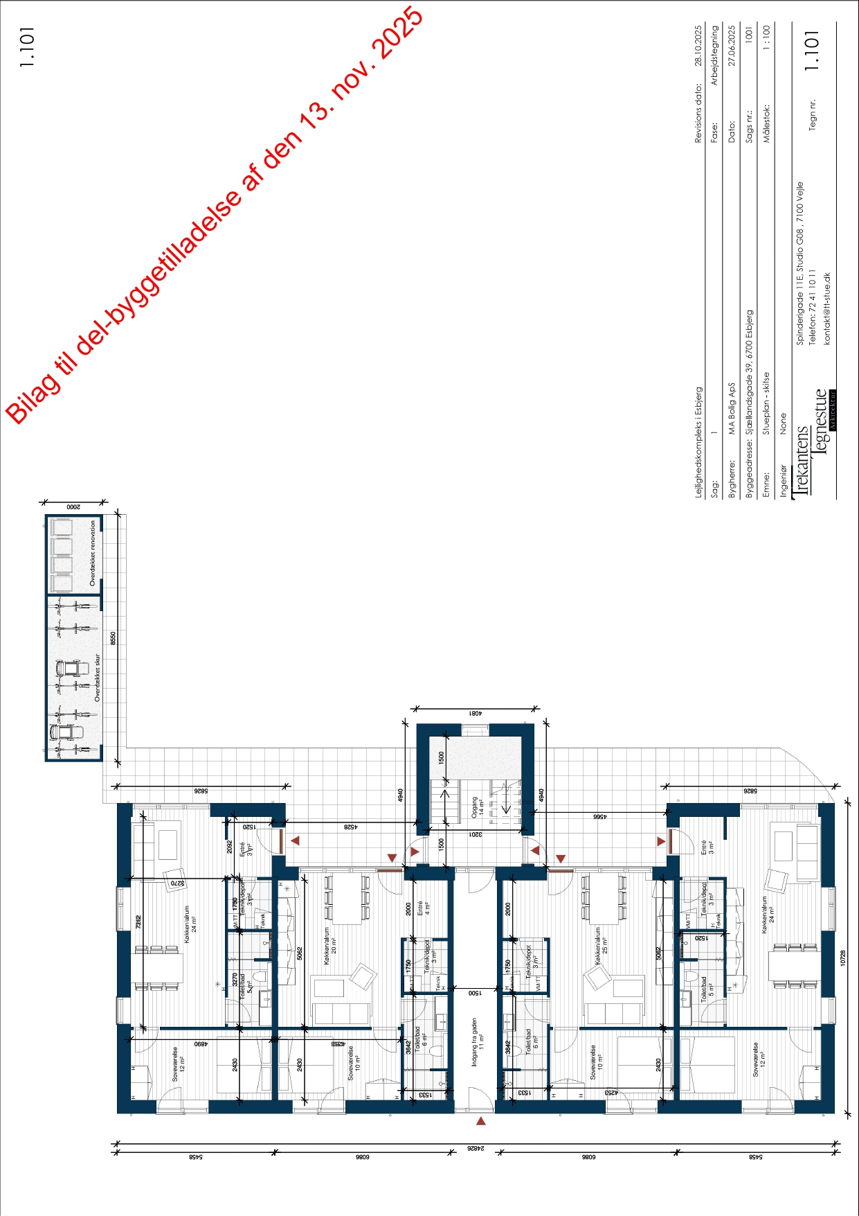
Der foreligger byggetilladelse til opførelse af et etagebyggeri i 2 plan med i alt 8 boliger. Projektet er disponeret med et estimeret areal på ca. 237 m² i stueplan og ca. 257 m² på 1. sal samt ca. 20 m² opgang, hvilket giver et samlet bebygget areal på ca. 514 m².

Projektet inkluderer desuden praktiske fællesfaciliteter i form af skur med plads til opbevaring og renovation samt gode parkeringsforhold med hele 9 parkeringspladser på egen grund.

Beliggenheden er særdeles attraktiv med kort afstand til indkøb, offentlig transport, uddannelsesinstitutioner og Esbjergs bymidte. Området henvender sig til en bred målgruppe, hvilket gør projektet yderst velegnet til både udlejning og privat beboelse.

Her får du en oplagt mulighed for at realisere et veldisponeret boligprojekt i en by med stabil udvikling og solid efterspørgsel.


Åben i Google Maps

Nøgletal

  • Lokaletype boligudlejning
  • Sjældent udbudt grund – sælges nu som projekt
  • Udbudspris kr. 2.550.000
  • Årlig lejeindtægt kr. 672.000
  • Anslået afkast 5,2%
  • Etageareal 514 m2
  • Grundareal 700 m2

Kontakt mægler

Simon Nielsen

Daglig leder - Erhvervsmægler, MDE


28 96 56 07
simon.nielsen@lassenerhverv.dk