Smedegade 49B-D

8700 Horsens


Ejendommen er beliggende centralt i Horsens og her er tale om en fredet ejendom, hvor ejendommen er opdelt i tre ejerlejligheder. Ejendommen repræsenterer en veldrevet og overskuelig investering med stabil lejeindtægt og attraktiv beliggenhed tæt på byens faciliteter, offentlig transport og gågade.

Ejendommen blev erhvervet af nuværende ejer 15. juli 2018, hvor ejer efterfølgende har total renoveret ejendommen med alle de fornødne godkendelser i forhold til kommune, fredningsnævn og kulturstyrelsen. Der er så mange facetter i alle de 3 ejerlejligheder, at det er en oplevelse værd.

Ejendommens nøgledata:
– Antal lejemål: 3 ejerlejligheder
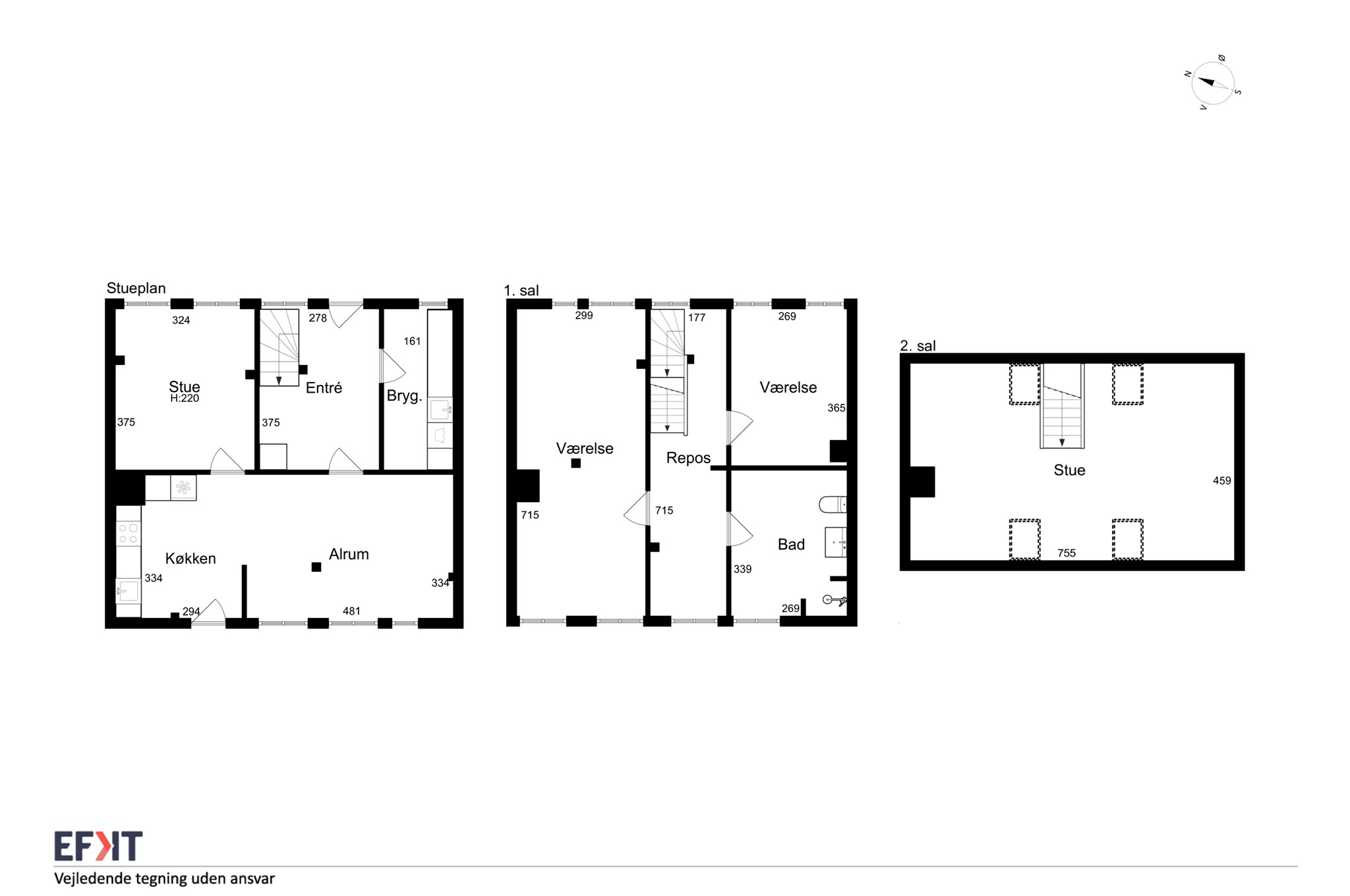
– Samlet areal: 370 m²
– Årlig lejeindtægt: kr. 356.348
– Budgetteret drift: kr. 75.390 (svarende til kr. 204 pr. m²)
– Nettoleje: kr. 280.958

Ejendommen fremstår som en stabil investering med lave tomgangsrisici, da alle tre ejerlejligheder er udlejede. Den fredede status giver ejendommen en unik karakter, mens den centrale beliggenhed i Horsens understøtter fortsat høj efterspørgsel på lejeboliger.

Unikt potentiale for værdistigning
En af de mest markante fordele ved ejendommen på Smedegade 49B-D er, at den er udstykket i tre separate ejerlejligheder. Denne struktur åbner mulighed for at sælge lejemålene enkeltvis til private købere, hvilket ofte kan resultere i en væsentligt højere kvadratmeterpris end ved salg som samlet investeringsejendom.

Salget af ejerlejligheder til private giver et naturligt potentiale for værdistigning, da boligmarkedets efterspørgsel efter separate ejerlejligheder ofte resulterer i bedre priser per kvadratmeter sammenlignet med investorkøb af hele ejendomme.

Efter sparring med de lokale boligmæglere bør lejligheder kunne sælges til som nedenstående opstillet:
Smedegade 49D, 8700 Horsens kr. 1.995.000
Smedegade 49B, 8700 Horsens kr. 2.995.000
Smedegade 49C, 8700 Horsens kr. 1.995.000
Samlet pris kr. 6.985.000, hvilket er svarende til 28% stigning.

Denne mulighed for frasalg af enkeltlejemål gør ejendommen ekstra attraktiv som investeringsobjekt – både for investorer, der ønsker et solidt cashflow, og for købere, som ser et langsigtet værdipotentiale ved videresalg af ejerlejligheder.

Smedegade 49D, 8700 Horsens blev opsagt af lejer d. 27.04.2026 og efter samråd med sælger har vi valgt ikke at arbejde på en genudlejning, da ny køber har mulighed for at lave et frasalg.

Ejendommen henvender sig særligt til:
– Den private investor, der ønsker en overskuelig ejendom med tre lejemål
– Den semiprofessionelle udlejer, som ønsker stabil drift og lav tomgangsrisiko
– Investoren, der prioriterer central beliggenhed og langsigtet værdifastholdelse


Åben i Google Maps

Nøgletal

  • Lokaletype boligudlejning
  • Ejendom med 3 ejerlejligheder – kæmpe potentiale ved frasalg
  • Udbudspris kr. 5.450.000
  • Årlig lejeindtægt kr. 356.348
  • Anslået afkast 5,2%
  • Etageareal 370 m2
  • Energiklassifikation C

Kontakt mægler

Ronni Bagge

Indehaver & Erhvervsmægler, MDE


20 57 53 70
ronni@lassenerhverv.dk